会津若松の不動産|浅沼産業株式会社 > 浅沼産業株式会社の物件一覧 > 物件詳細
「日吉丑渕 売家」:会津若松市エリアの新居にピッタリ。でこぼこがない平坦地はみんなが安心に生活できますよ。105.58㎡の建物面積でスペースの面でも問題なく快適に過ごせますよ。中古の戸建て物件は幅広い年齢層の方からニーズがあります。会津若松市の只見線西若松周辺には、マイホームに相応しい一戸建て情報が豊富です。引っ越しをお考えの方は、お気軽にご連絡ください。










(※元利均等方式 金利5.00%まで ※返済年数5~50年まで入力できます)
(※ボーナスは年2回で計算しています。1000万円まで入力できます)
(※物件購入時、その他諸費用が発生する場合がございます)
| 所在地 | 福島県会津若松市門田町大字日吉字丑渕97-7 | ||
|---|---|---|---|
| 交通 | |||
| 間取り/詳細 |
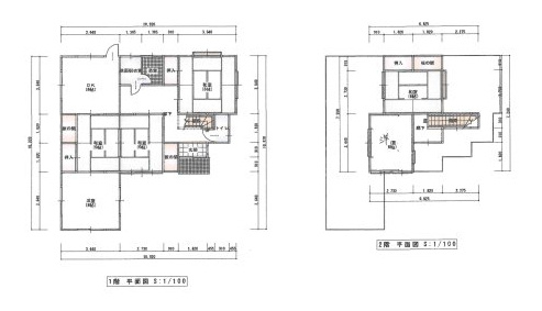
6DK/ 和室 6.0帖 2室/和室 8.0帖 1室/洋室 8.0帖 1室/和室 6.0帖 1室/洋室 6.0帖 1室 1F 洋室8帖 未登記になっております。 |
建物面積(坪数) | 105.58㎡(31.93坪) |
| 価格 | 750万円 | ||
| 駐車場/月額料金 | 有(2台)/- | ||
| 土地の敷金/保証金 | -/- | 借地料/借地期間 | -/- |
| 土地権利 | 所有権 | 土地面積(坪数) | 216.12㎡(65.37坪) |
| 傾斜地部分面積 | - | 路地状敷地 | - |
| 私道負担面積/セットバック | -/無 | 高圧線下面積 | - |
| 地目/地勢 | 宅地/平坦 | 接道状況 | 一方(東 公道 6.0m 間口 12.0m) |
| 建ぺい率/容積率 | 60%/200% | 用途地域 | 第二種住居 |
| 都市計画 | 市街化区域 | 種別/構造 | 中古一戸建/木造 |
| 階建 | 2階建 | 築年月(築年数) | 1987年 12月 (築37年) |
| 総区画数/販売区画数 | 1区画/- | 向き | 南 |
| 現況 | 居住中 | その他の法令上の制限 | - |
| 取引態様/引渡時期 | 専任媒介/相談 | 建築確認番号 | - |
| 物件番号 | 93258134 | 取引条件の有効期限 | 2025年11月13日 |
| 設備条件 |
|
||
| 備考 | 1F 8帖洋室 未登記になっております。 | ||
| 取扱会社 |
|
||
| QRコード |
このQRコードを読み取ることで、スマホでも物件情報を確認できます。 |
||
※地図上に表示される物件の位置は付近住所に所在することを表すものであり、実際の物件所在地とは異なる場合がございます。
会津若松市門田町大字日吉字丑渕の中古一戸建に関するこだわり条件から探す